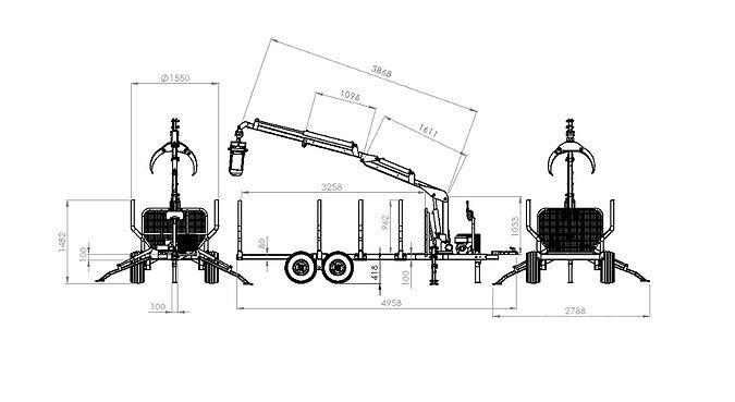
• Haagise kandevõime 3T. Üldpikkus 4958mm, haagise laaditava osa pikkus 3258mm, laius 1550mm, allalastud tugijalgadega laius 2788mm, kõrgus maapinnast kuni posti otsteni 1482mm.
  • puldiga hüdrovints komplektis, 50m trossi poolil.
  • 9 sektsiooniga jagaja, millest 2 kangi Joystick.
  • 4 rida poste, postide kõrgus 962mm.
  • bensiinimootor 6,5hj ATV -le või PTO pump traktorile hinnas.
  • Hüdroõli mahuti 12L.
  • Masti keeramine kahe silindriga.
  • kraana soovitatav tõstevõime 300kg (tegelik suutlikus haagise kõrvalt max 500kg) vastavalt masti asetusele. Kraana masti pikkus(välja sirutatult) ilma haaratsita 3868mm.
  • haaratsi max avatus 700mm.
  • kliirens maapinnast 420mm.
  • rattad 22*11-10″
  • rotaator kandevõime 500kg,
  • raam, nelikant toru 100*100*8mm, viimase postide reaga on raam väljatõmmates pikendatav.
  • komplektse haagise neto kaal 880kg.
  •  tutvustav video , 
  •  3T täiskomplektse haagise hind (bensiinimootoriga mudel) 5900.- Eur kmga. Laos
  • 1,5t täiskomplektse haagise hind (bensiinimootoriga mudel) 4750.-Eur kmga. Müüdud.
  • ________________________________________________________________

Varuosad eraldi saadaval: Rotaator 357.-Eur kmga. Haarats 465.-Eur kmga.